Contact Judith Bennett
Schedule A Showing
8011 Mobley Road, ODESSA, FL 33556
Priced at Only: $979,900
For more Information Call
Address: 8011 Mobley Road, ODESSA, FL 33556
Property Location and Similar Properties
- MLS#: W7880556 ( Residential )
- Street Address: 8011 Mobley Road
- Viewed: 153
- Price: $979,900
- Price sqft: $187
- Waterfront: Yes
- Wateraccess: Yes
- Waterfront Type: Lake Front
- Year Built: 1947
- Bldg sqft: 5233
- Bedrooms: 3
- Total Baths: 3
- Full Baths: 3
- Garage / Parking Spaces: 3
- Days On Market: 164
- Additional Information
- Geolocation: 28.1152 / -82.5746
- County: PASCO
- City: ODESSA
- Zipcode: 33556
- Subdivision: Unplatted
- Provided by: BHHS FLORIDA PROPERTIES GROUP
- Contact: JIM Steele, PA
- 727-835-3110

- DMCA Notice
-
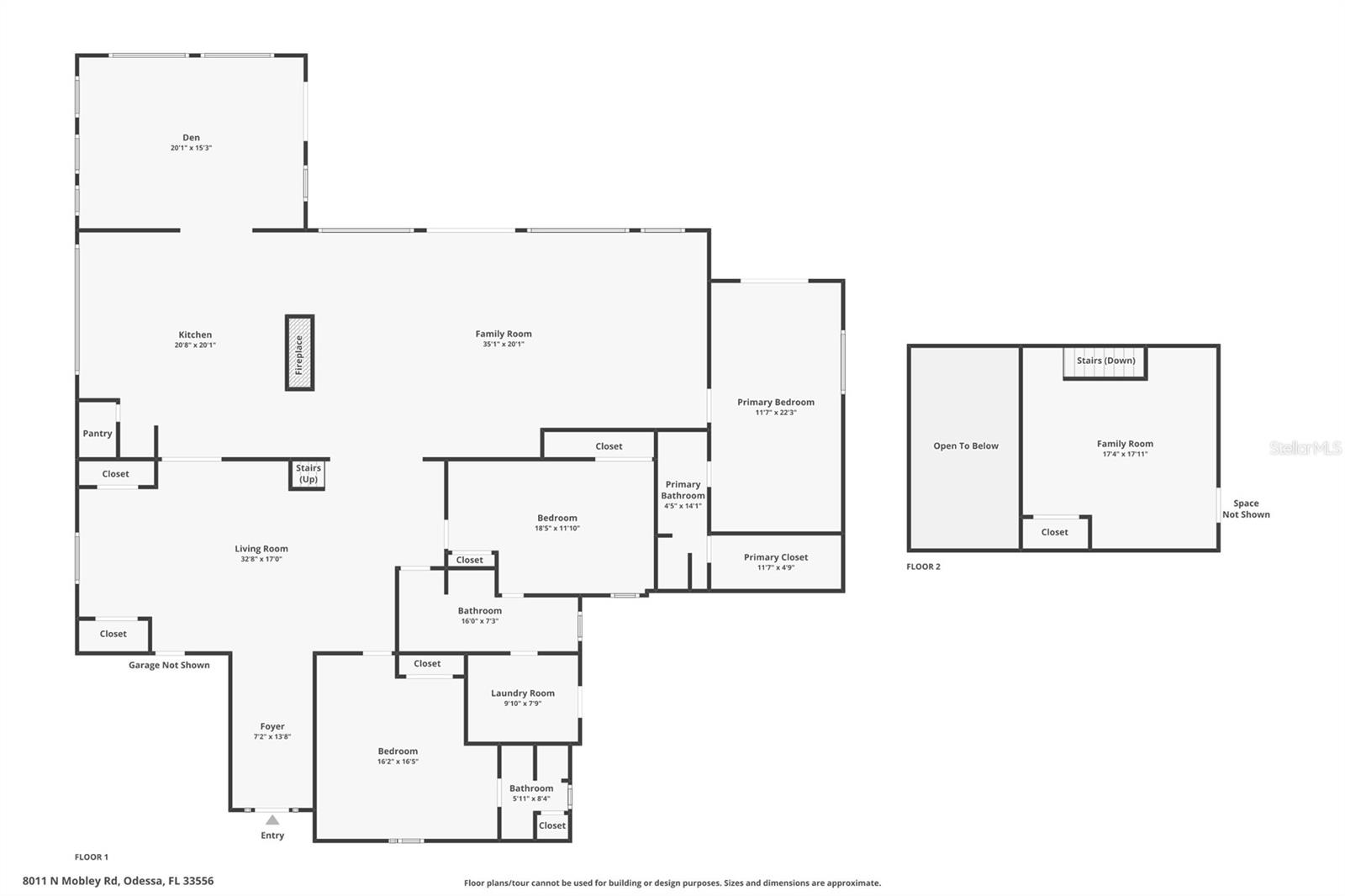
DescriptionRare 175 Lakefront Property in Odessa! Welcome to this beautifully maintained 4 bedroom, 3 bath, 3,240 sq. ft. home on 1.82 acres along private James Lakewhere Old Florida charm meets modern luxury. The property line along the lake is 175 feet. Only 135 feet of that is clear of any vegetation. There is approximately 40 more feet that has heavy vegetation, which could be cleared out, giving you a full 175 feet open to the lakeside Nestled beneath a canopy of mature oaks, pines, and lush Florida foliage, this home offers exceptional privacy, tranquility, and captivating water views from multiple rooms. Originally built in 1947 and extensively renovated, the residence now features a spacious open floor plan with fresh paint, new luxury vinyl plank flooring, and abundant natural light throughout. The chef inspired kitchen boasts rich wood cabinetry, granite countertops, stainless steel appliances, and a breakfast bar, flowing into a bright Florida room and a grand 600 sq. ft. great room with soaring ceilings, a dramatic stone fireplace, and French doors leading to a newly renovated 500 sq. ft. deck overlooking the lake. The primary suite opens to the rear deck and offers a spa like ensuite bath, while an expanded 3 car garage and interior laundry add everyday convenience. The awesome loft can easily be used as a 4th bedroom Outdoors, enjoy a new paved walkway and patio down to the lake, perfect for morning coffee, fishing, or sunset relaxation. Just minutes from the Veterans Expressway, 20 minutes to Tampa International Airport, and 30 minutes to downtown Tampa or the Gulf beaches, this rare lakefront gem captures the best of Florida livingpeaceful, elegant, and perfectly located.
Features
Waterfront Description
- Lake Front
Appliances
- Dishwasher
- Range
- Refrigerator
Home Owners Association Fee
- 0.00
Carport Spaces
- 0.00
Close Date
- 0000-00-00
Cooling
- Central Air
Country
- US
Covered Spaces
- 0.00
Exterior Features
- Sidewalk
Flooring
- Carpet
- Tile
- Wood
Garage Spaces
- 3.00
Heating
- Central
Insurance Expense
- 0.00
Interior Features
- Ceiling Fans(s)
- Eat-in Kitchen
Legal Description
- W 175 FT OF SW 1/4 OF SW 1/4 OF SE 1/4 LESS RD R/W
Levels
- One
Living Area
- 3240.00
Area Major
- 33556 - Odessa
Net Operating Income
- 0.00
Occupant Type
- Vacant
Open Parking Spaces
- 0.00
Other Expense
- 0.00
Parcel Number
- U-23-27-17-ZZZ-000000-16710.0
Parking Features
- Boat
- Driveway
Property Type
- Residential
Roof
- Shingle
Sewer
- Septic Tank
Tax Year
- 2024
Township
- 27
Utilities
- Electricity Connected
- Water Connected
View
- Water
Views
- 153
Virtual Tour Url
- https://www.zillow.com/view-imx/ed5a40d8-8bfc-4b16-b2e2-068c82635667?wl=true&setAttribution=mls&initialViewType=pano
Water Source
- Well
Year Built
- 1947
Zoning Code
- ASC-1
- Judith Bennett, PA,REALTOR ®
- Tropic Shores Realty
- Mobile: 727.808.5356
- judybennetthomes@gmail.com

























































































