Contact Judith Bennett
Schedule A Showing
17280 English Chestnut Way, LAND O LAKES, FL 34638
Priced at Only: $312,990
For more Information Call
Mobile: 727.808.5356
Address: 17280 English Chestnut Way, LAND O LAKES, FL 34638
Property Photos
Property Location and Similar Properties
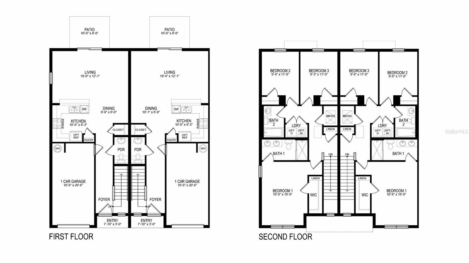
- MLS#: TB8456689 ( Townhome )
- Street Address: 17280 English Chestnut Way
- Viewed: 4
- Price: $312,990
- Price sqft: $181
- Waterfront: No
- Year Built: 2026
- Bldg sqft: 1725
- Bedrooms: 3
- Total Baths: 3
- Full Baths: 2
- 1/2 Baths: 1
- Garage / Parking Spaces: 1
- Days On Market: 12
- Additional Information
- Geolocation: 28.2094 / -82.5303
- County: PASCO
- City: LAND O LAKES
- Zipcode: 34638
- Subdivision: Salem Townhomes
- Elementary School: Wesley Chapel
- Middle School: Thomas E Weightman
- High School: Wesley Chapel
- Provided by: D R HORTON REALTY OF TAMPA LLC
- Contact: Jodi Smenda

- DMCA Notice
-
DescriptionUnder Construction. The builder is offering buyers up to $25,000 towards closing costs with the use of a preferred lender and title company. Located off Tower Rd, Westwood brings new homes to Land O Lakes and is just minutes from the Suncoast parkway. The community, located in a very desirable area, offers a pool, cabana, playground, dog park, passive park, and paved trails. Homeowners will have access to a multitude of excellent conveniences, including close proximity to State Road 54, shopping, restaurants, and of course, the Suncoast Parkway. The Tampa airport and downtown Tampa are both just a short 30 minute drive away. The zoned schools are all excellently rated and not far from the community. Westwood will feature our Express series townhomes. Each home is constructed with all concrete block construction on 1st and 2nd stories and Home is Connected; D.R. Hortons Smart Home System. Pictures, photographs, colors, features, and sizes are for illustration purposes only and will vary from the homes as built. Home and community information, including pricing, included features, terms, availability, and amenities, are subject to change and prior sale at any time without notice or obligation. Materials may vary based on availability. D.R. Horton Reserves all Rights.
Features
Property Type
- Townhome
- Judith Bennett, PA,REALTOR ®
- Tropic Shores Realty
- Mobile: 727.808.5356
- judybennetthomes@gmail.com

























